FUDOSAN
不動産情報
下伊那郡高森町 中古住宅
物件状況

案内図
詳細情報
| 所在地 | 下伊那郡高森町吉田2143番地5 |
|---|---|
| 学区 | 高森南小学校まで1.7㎞(徒歩22分)/ 高森中学校まで1.6㎞(徒歩20分) |
| 交通 | JR飯田線市田駅まで875m(徒歩1分) |
| 面積 | 250.11㎡(75.65坪) |
| 地目 | 宅地 |
| 権利 | 借地権 |
| 接道 | 西側道路(幅員5.91m) |
| 用途地域 | 無指定 |
| その他制限 | 建築基準法白地規制地域 / ハザードマップ3.0m~5.0m浸水想定区域 |
| 上水道 | 公共上水本管(西側公道に埋設接続済み) |
| 下水道 | 公共下水本管(西側公道に埋設接続済み) |
| 取引態様 | 媒介 |
| 媒介手数料 | 297,000円(税込) |
| その他 | 土地は借地となります。(借地料151,200円/年間) |
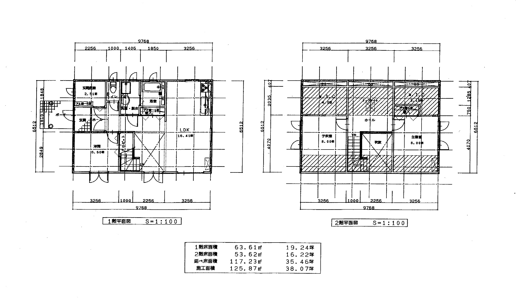
【建物情報】
・延床面積:117.34㎡(35.50坪)
・木造軸組2階建て
・3LDK
・2002年10月完成(築23年)
・3年前に外壁塗装済み
